Ny ridsportanläggning i Härnösand

I uppdraget ingick att hålla i projektet från första program- och skissarbetet till att ansvara för projektering samt projekt- och byggledning vid entreprenaden 2014-2015.

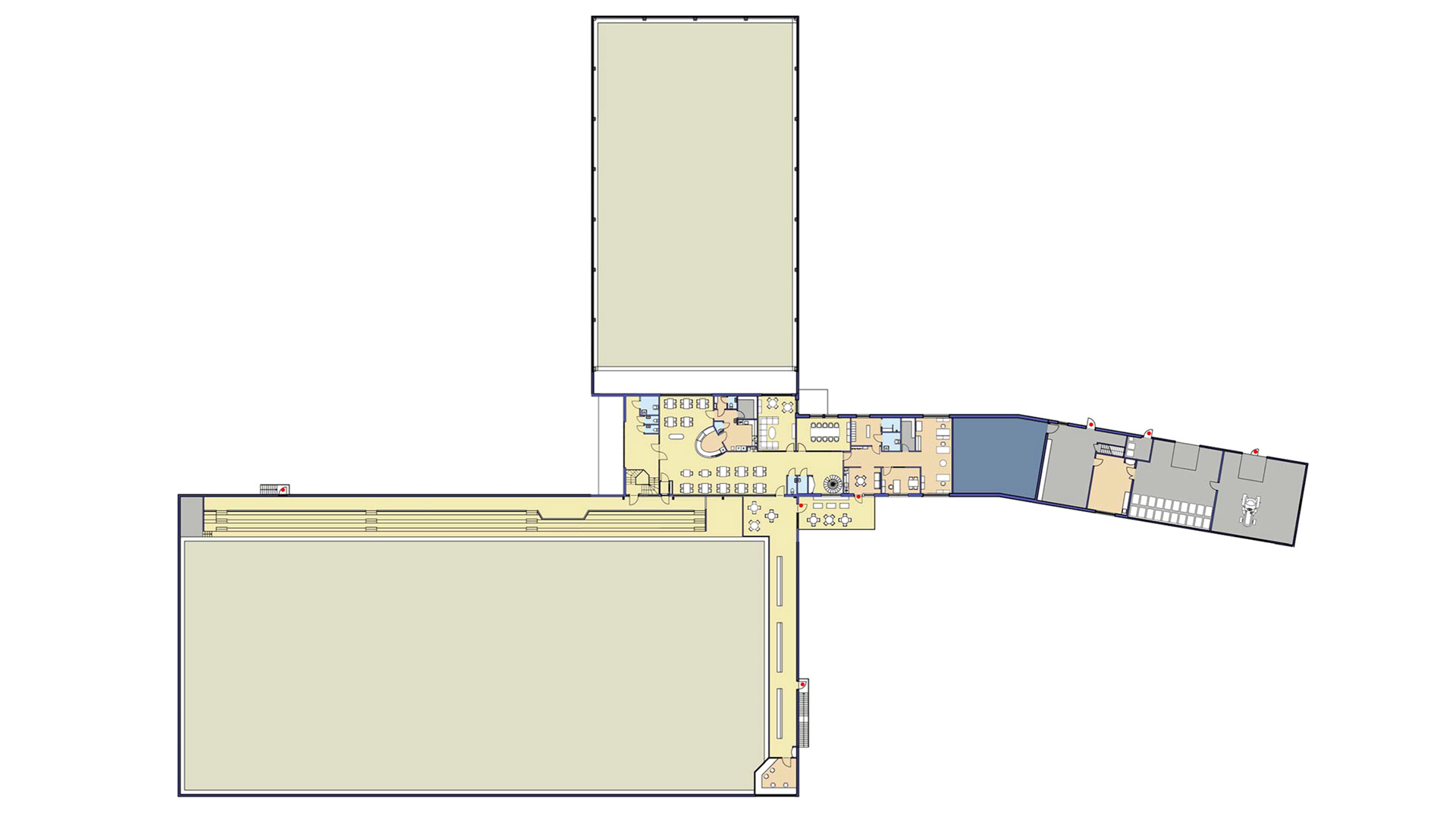
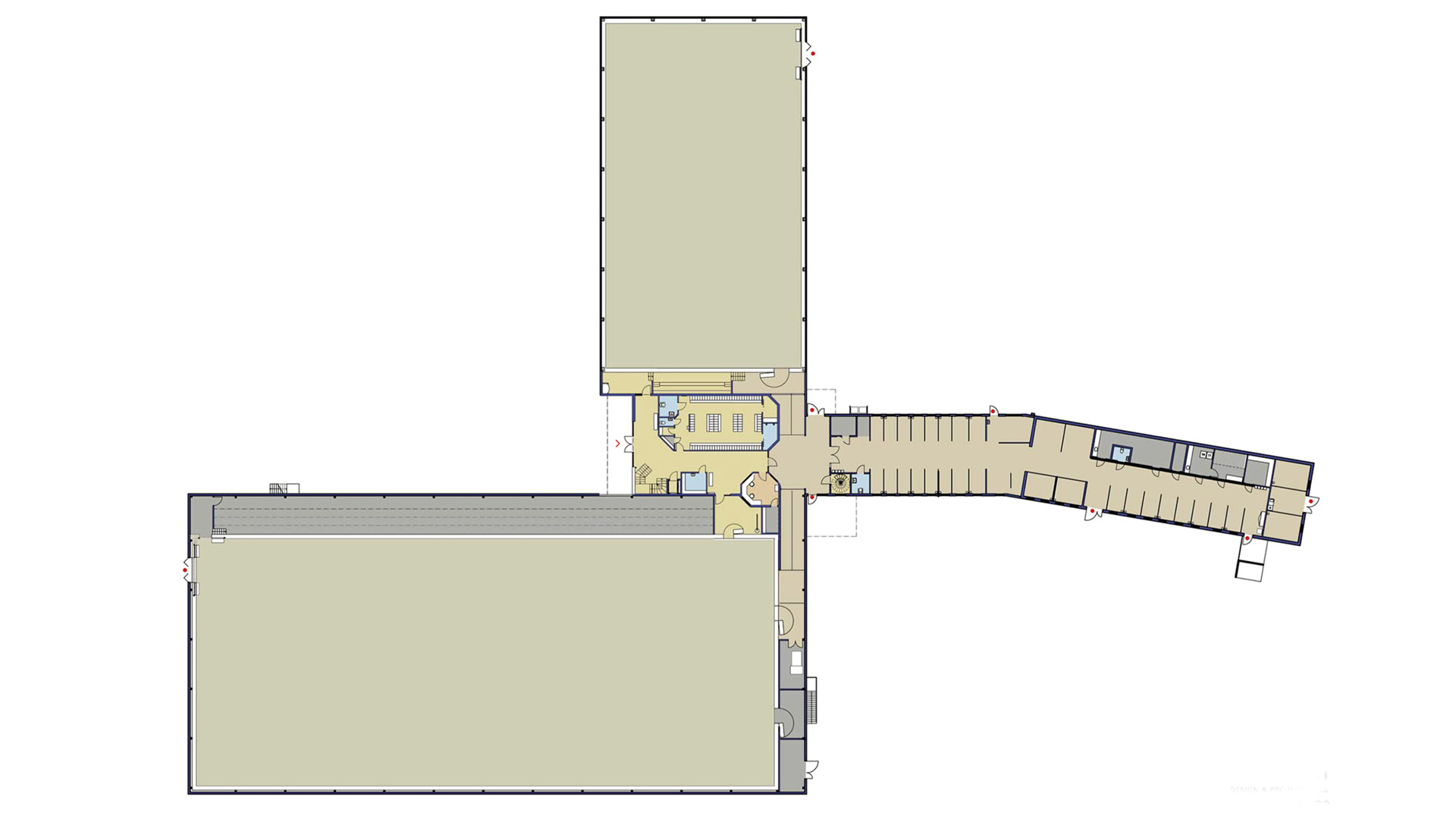
Den befintliga ridskolan var i stort behov av en genomgående översyn. Ombyggnaden innebar att stommen i det befintliga ridhuset, samt stalldelen, behölls men genomgick en omfattande renovering.

Till det har ett nytt ridhus byggts med manegemått 30 x 70 m och en mellanliggande servicedel med omklädning, cafeteria och kontor.

Anläggningen har utformats så att rörelsehindrade får en bra tillgänglighet. Hästarna går ute i en modern lösdriftsanläggning, så kallad Active Stable.

Hästarna har där tillgång till ligghall och foderautomater. Active Stable är en hästhållningsform som i forskning har visat sig ha stora positiva effekter för både hästar och stallpersonal. Anläggningen står nu klar och är Norrlands främsta och modernaste ridanläggning. 

Härnösands kommun 2010-2015.